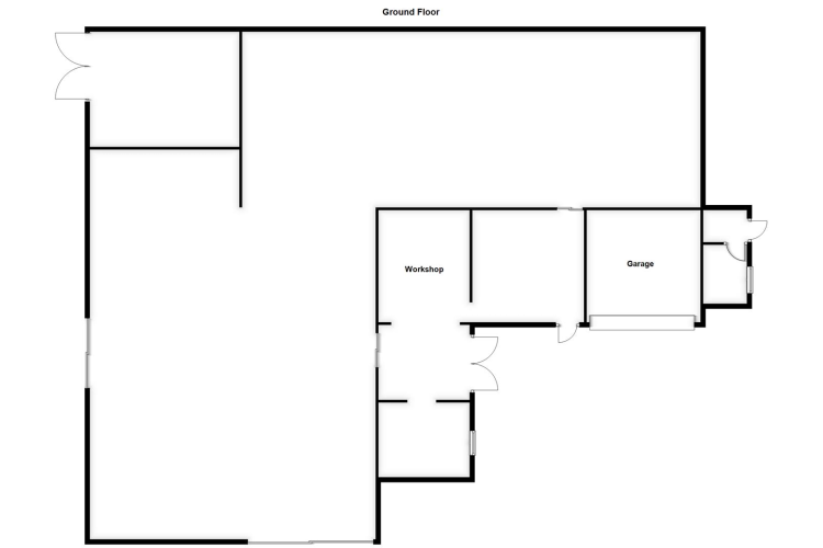
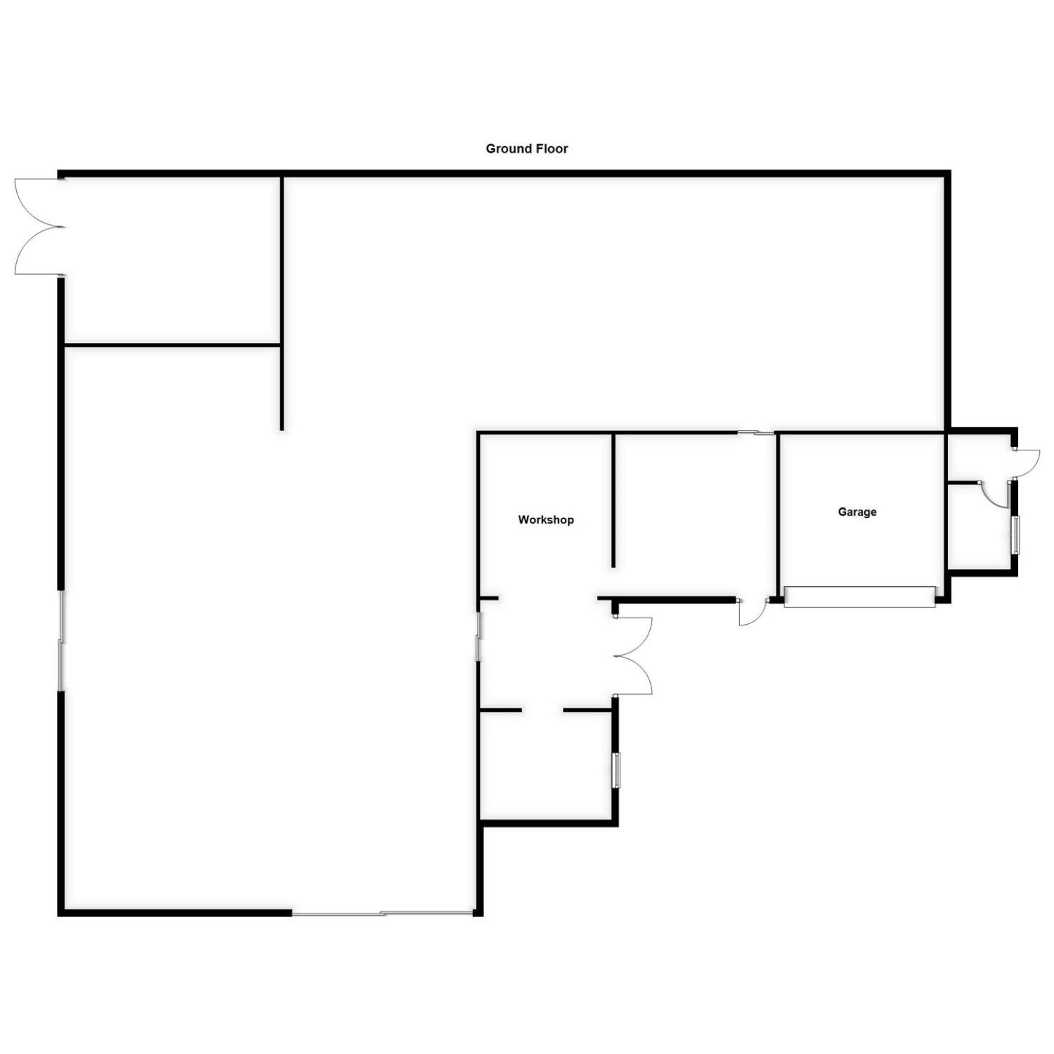
Click on the floorplan image to open a larger version in a new window.
 
Floor plan