Property Search
Shared Ownership
Holland Broadbridge is pleased to market a number of Shared Ownership properties on behalf of Severn Homes, offering a low cost option to home buyers who are looking to get on the property ladder.
Shared Ownership allows eligible applicants to buy a share in a new home and pay rent on the remaining share.
For more information please click on the link below to view Severn Homes helpful guide.
https://issuu.com/severnside/docs/about_shared_ownership_final_cc76c8584e128d
View below the Shared Ownership properties for sale through Holland Broadbridge.
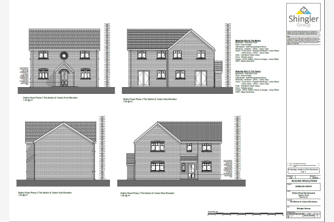
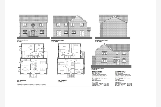
Plot 7, 2, Mullinex Way, Baschurch, Shrewsbury, Shropshire, SY4 2FQ
- PDF Brochure
- Floor Plan
- Location Map
-
Energy Performance
- Request Viewing
- Send to Friend
Full Property Description:
Holland Broadbridge are pleased to offer For Sale an attractive and spacious brand new two bedroom semi-detached house (currently under construction) which is being offered For Sale on a shared ownership scheme. The valuation is currently £204,500, so a 50% share will be £102,250. The rental cost payable to the Housing Association would be £2811.88 per annum or £234.32 PCM (please note a higher share can be purchased) the staircasing cap is up to 80% on the property so there is the option to staircase up to 80% ownership in the future subject to being financially qualified and meeting certain requirements set by Cornovii development Ltd. Please register on Shropshire home point website which is Shropshires choice based system for shared ownership. Viewing comes highly recommended by the selling agent.

